来源:二十四城装饰 浏览人数:次 更新时间:2025-08-20
| 楼盘名称 | 中南樾府 | 楼盘类型 | 普通住宅 | 楼盘面积 | 156㎡ |
|---|---|---|---|---|---|
| 案例风格 | 现代简约风 | 设计师 | 赵瑞 | 所在城市 | 成都 |


对生活十分有考究的90后夫妻,喜欢现代感的风格,想要将喜爱的事物全部容纳进自己的家中。
现在这里变成了一个特别的场所,跳出了传统意义的框架,让新家充满自由乐趣。对一家三口而言,向前推进的每一天都是如此的完美幸福。

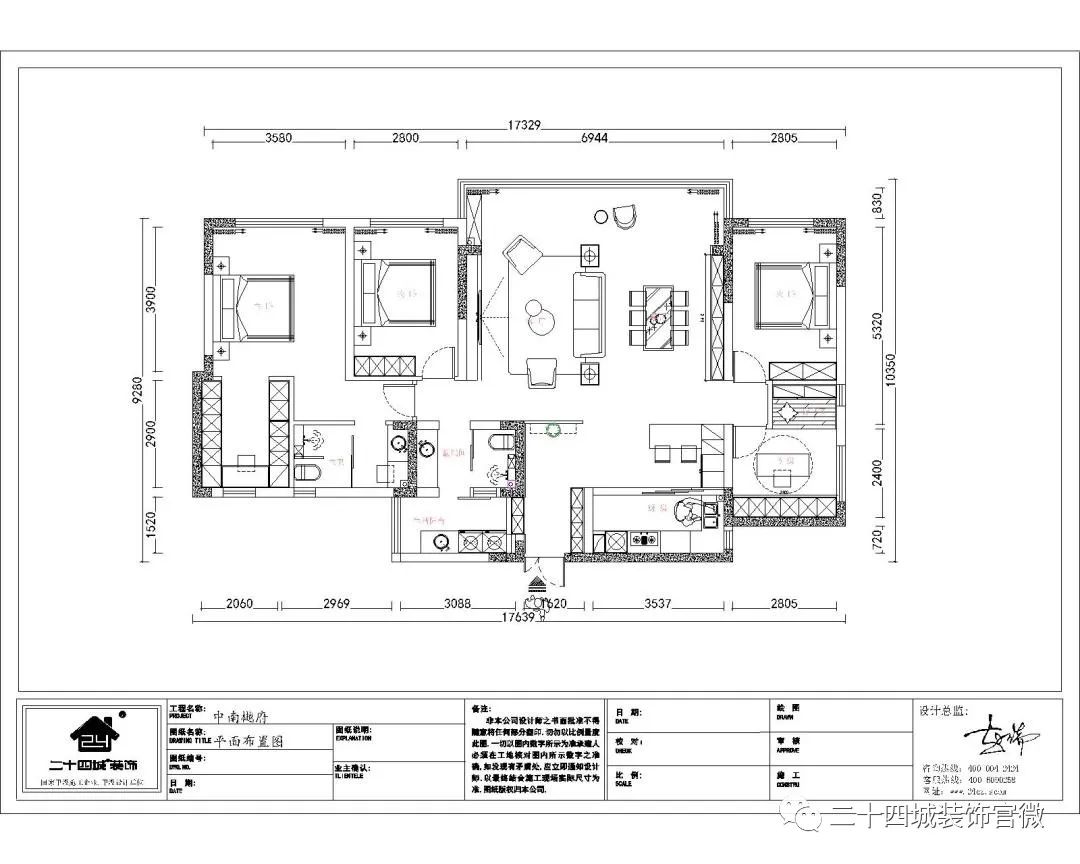
强调少即是多的现代简约风格,以极简的装饰美学与设计手法,让家呈现出精致实用且高级的状态。

客餐厅采用灰色+黑色,再配合大量的留白空间,让整体环境更通透开阔。精挑细选的白纱窗帘,带来清爽轻盈的质感。


电视背景墙下方角落的大型手办,为空间增添了不少的趣味性和丰富的层次感。




客厅餐厅一体化,沙发后方是餐厅区域,打造一门到顶的餐边柜,柜门为浅灰色的,和客厅色彩统一。


整个餐边柜是柜门与玻璃柜相结合的造型,这样有些日常的小物件可以放在带柜门的柜格里,不会显得杂乱。同时中间留有台面日常可以摆放一些小家电。



全屋设计进行完美贯穿,将灰色黑色与白色作为视觉主色,吧台和厨房错落有致,冷暖平衡之下散发出轻奢舒适的餐厅气质。
坐在吧台处可看客厅窗外风景,在细节的脉络中,谱写出令人身心倍感愉悦的把酒言欢之所。


厨房线条平直不复杂,将色彩、光影进行最大程度的精简,打造高级的生活质感。
利用透明玻璃门作为厨房与客厅吧台的隔断,避免油烟的同时减少视觉上的阻隔。


主卧延续了简约的风格特点,浅灰色的木质背景墙加上同色系床品,配合床头的吊灯,给人舒缓轻松的氛围感。

主卧房间面积比较大,床的一边做了一组步入式衣帽间,双排衣柜+梳妆台满足业主的衣物收纳需求。


次卧为儿童房,整体硬装简简单单,满足小朋友需求床品选用可爱小熊的造型,打造一个舒适温馨的儿童房。



客厅阳台打通,采用灰色大地砖通铺,显得空间更加的宽敞明亮,同时大大的落地窗让客厅采光非常的好。


装修机构 | 成都二十四城装饰
主案设计 | 赵瑞
项目地点 | 成都·金牛区
项目楼盘 | 中南樾府
项目面积 | 156㎡
-THE END-
以客为尊·以诚相待·以信立本·以质取胜
上一案例: 万科和园新家完工 | 配色、空间、细节全在线
下一案例: 【完工交付】120m²简雅新中式,呈现极致之美!